Skip to main content

Wohnlandschaften

Wohnlandschaft Microfaserstoff vintage beige

img_3042
  • img_3042
  • Skizze
  • img_3056
  • img_3054
  • img_3058
<< zurück zur übersicht

Wohnlandschaften

Wohnlandschaft Microfaserstoff vintage beige

Metallfüße

  • Material
    Microfaserstoff
    Farbe
    vintgage beige
    Polsterung
    hochwertige Schaumstoffpolsterung/ Stahlwellenunterfederung
    Bestehend aus
    2 Sitzer
    Ecke
    2 Sitzer
    Hersteller
    Candy/Carina
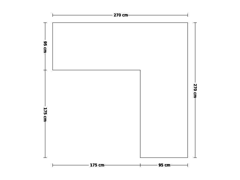
  • Tiefe
    95 cm
    Breite
    270 cm
    Höhe
    100 cm
  • Ausstellungsstück
    Schürfstellen


1.145,00 € pro Stück
1.145,00 € pro Stück